Skip to content

M8

Agioi Omologites

Features

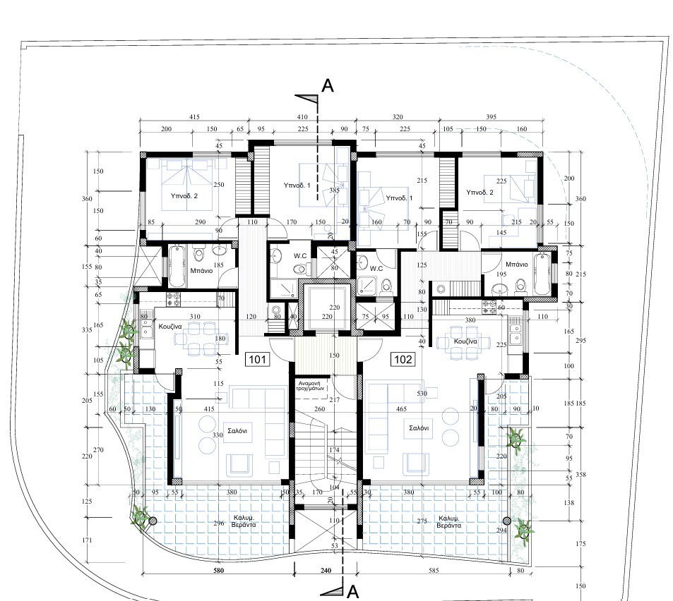
2 Bedrooms
2 Bathrooms
Roof Garden
Energy Grade A
Parking Space
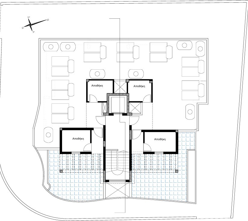
Storage Unit

Description

M8 by Blu Homes is a modern residential development in the prime Agioi Omologites area of Nicosia, offering exclusive urban living in one of the city’s most sought-after neighborhoods.

The project is currently under construction and features only 8 carefully designed apartments, with 2 units on each floor to ensure privacy and comfort. The fourth-floor apartments are especially exclusive, offering private roof gardens that provide a unique outdoor living experience.

Each residence is designed with contemporary architecture, high-quality finishes, and Energy Efficiency Class A, combining modern style with sustainability and reduced energy costs.

With its prime location, limited number of units, and premium design, M8 by Blu Homes offers a rare opportunity for homeowners and investors seeking comfort, style, and long-term value in Nicosia.

Location

Floor plans

Availability

Method of Payment

A clear and flexible payment structure designed to follow the key milestones of your new home.

30%

Upon signing of the contract

10%

Upon completion of the Foundation Raft Slab

15%

On completion of the Reinforced Concrete Frame of the Property

10%

Upon completion of the Brick Walls or Drywalls one side (without plaster)

15%

Upon completion of the Underfloor Screed

10%

Upon completion of the Marble and/or Ceramic in Bathrooms

10%

Upon completion of the Carpentry of the property

Get in touch with us.