Skip to content

M7

Dasoupoleos 62 , Nicosia

Features

1-3 Bedrooms
1-3 Bathrooms
Roof Garden
Energy Grade A
Parking Space
Storage Unit

Description

Introducing M7, the latest residential project by Blu Homes, nestled in the prestigious Dasoupoli area of Nicosia. Designed with modern lifestyles in mind, M7 combines elegance, sustainability, and comfort to offer a refined living experience in one of the city’s most desirable locations.

  • M7 by Blu Homes is a new contemporary development in the prime area of Dasoupoli, Nicosia.
  • Offers stylish 1, 2, and 3-bedroom apartments focused on modern living, sustainability, and design.
  • Features include clean architecture, private roof gardens, and spacious outdoor areas.
  • Equipped with solar energy systems for eco-conscious and energy-efficient living.
  • Ideal for families, professionals, and investors—close to top schools, amenities, and Nicosia’s business center.

Location

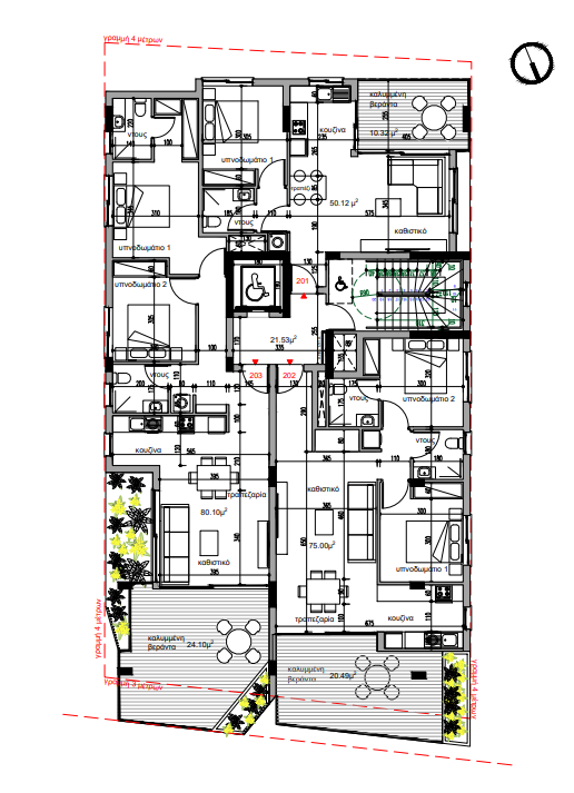
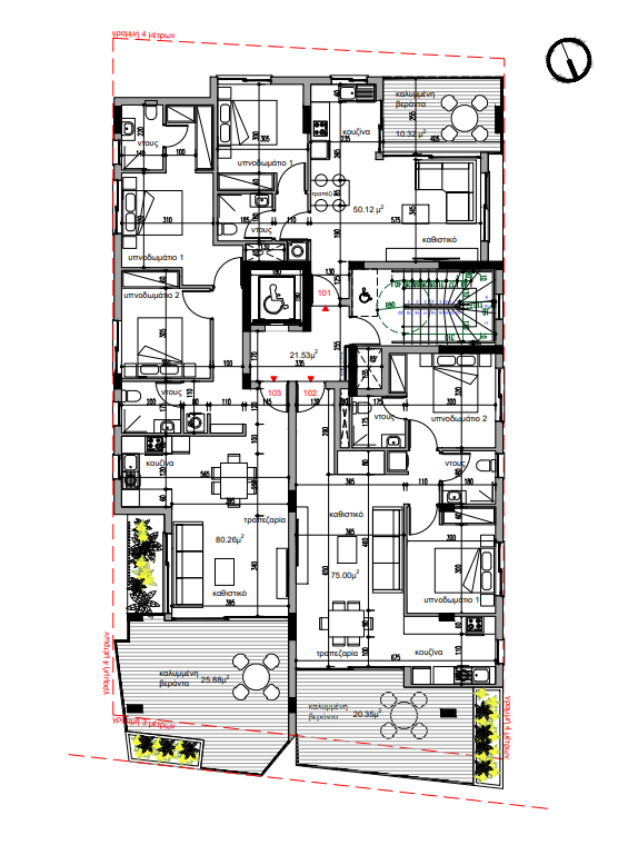
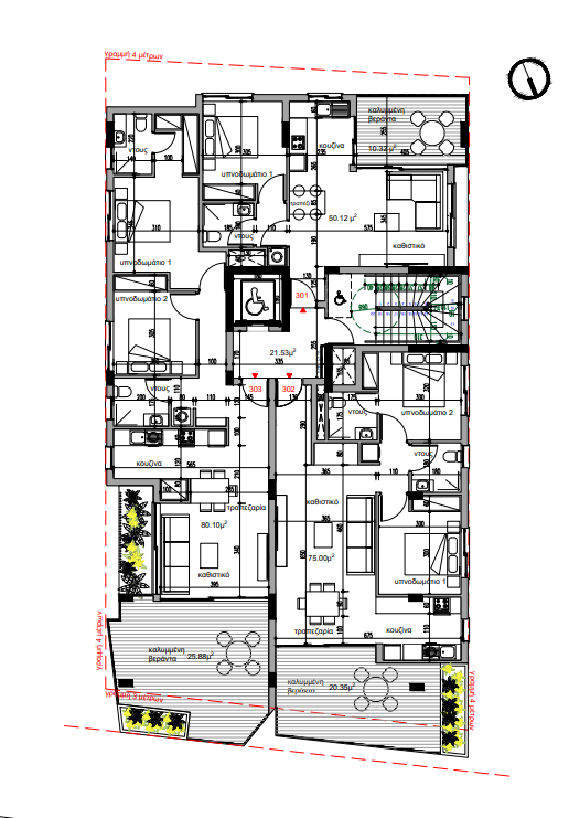
Floor plans

Method of Payment

A clear and flexible payment structure designed to follow the key milestones of your new home.

30%

Upon signing of the contract

10%

Upon completion of the Foundation Raft Slab

15%

On completion of the Reinforced Concrete Frame of the Property

10%

Upon completion of the Brick Walls or Drywalls one side (without plaster)

15%

Upon completion of the Underfloor Screed

10%

Upon completion of the Marble and/or Ceramic in Bathrooms

10%

Upon completion of the Carpentry of the property

Get in touch with us.