Skip to content

M5

Agios Dometios

Features

2-3 Bedrooms
2-3 Bathrooms
Roof Garden
Energy Grade A
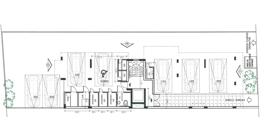
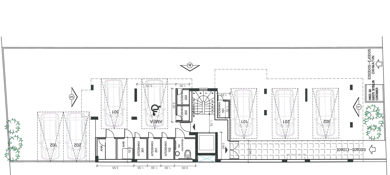
Parking Space
Storage Unit

Description

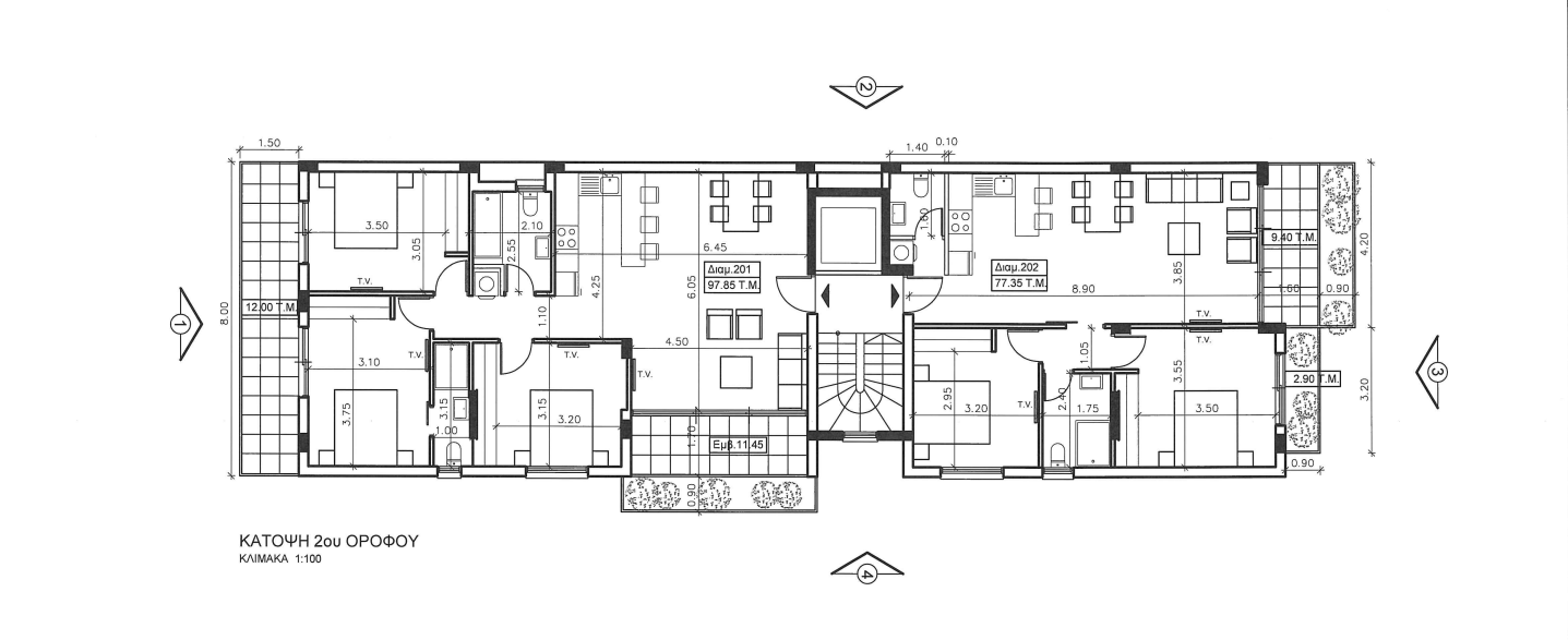
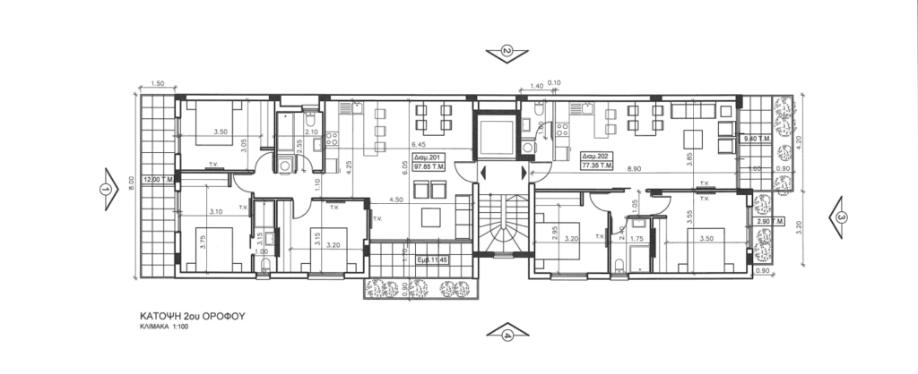
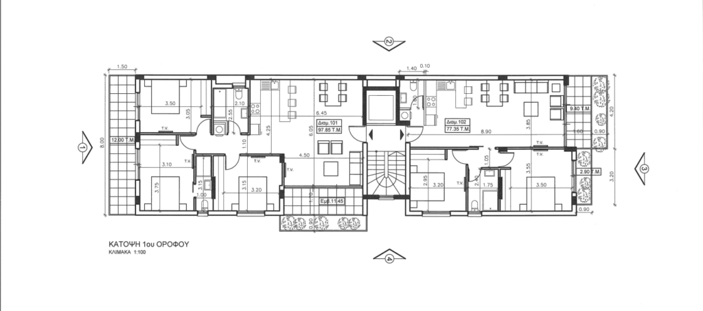
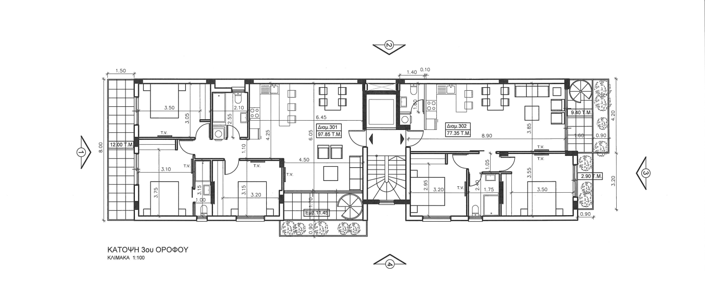
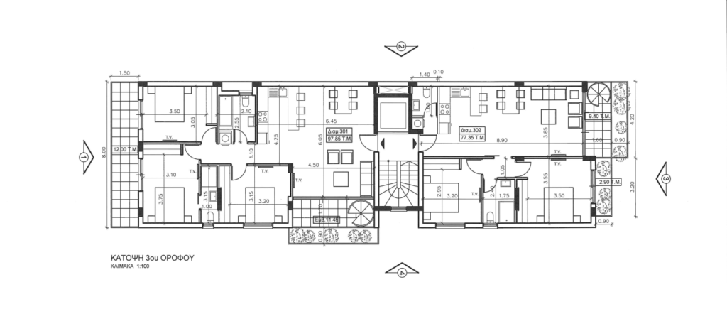
M5 is a premium residential development offering modern, low-density living in one of Nicosia’s most vibrant suburbs, Agios Dometios. Comprising only six exclusive 2- and 3-bedroom apartments across three floors, M5 blends architectural elegance with practical comfort, making it an ideal choice for families and professionals alike.

Each apartment is thoughtfully designed with spacious interiors, modern kitchens, and cozy living areas. Residents enjoy private parking, dedicated storage rooms, and the added benefit of a rooftop garden in select units. Sustainability is also prioritized, with solar panel integration contributing to energy efficiency.

Located just minutes from central Nicosia and close to top universities, local eateries, and cultural landmarks, M5 offers the perfect balance of urban convenience and neighborhood tranquility.

Location

Floor plans

Availability

Method of Payment

A clear and flexible payment structure designed to follow the key milestones of your new home.

30%

Upon signing of the contract

10%

Upon completion of the Foundation Raft Slab

15%

On completion of the Reinforced Concrete Frame of the Property

10%

Upon completion of the Brick Walls or Drywalls one side (without plaster)

15%

Upon completion of the Underfloor Screed

10%

Upon completion of the Marble and/or Ceramic in Bathrooms

10%

Upon completion of the Carpentry of the property

Get in touch with us.